Vente Maison - 4 pièce(s) MARQUION (62)
Dont HN* : 9 350 € (5.5%)
Charge acquéreur
Conditions de vente
Dont prix de vente : 170 000 €
Dont HN* TTC à la charge de l'acquéreur : 9 350 € (5.5%)
Description
Maison / villa à vendre - MARQUION (62860)
Située dans un village à proximité de MARQUION (62860 Pas-de-Calais) :
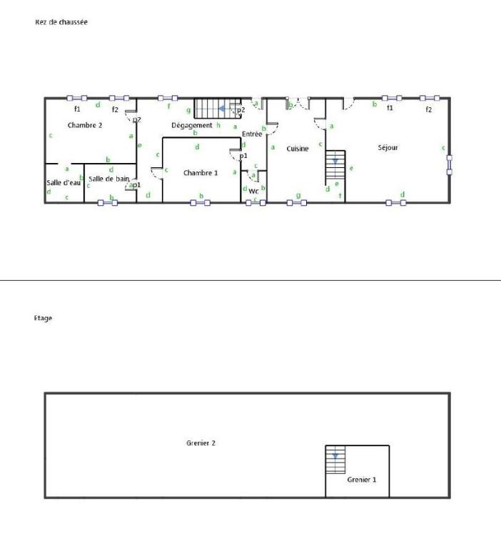
Maison individuelle de type longère à vendre.
Cette maison, de plain pied et à conforter, se compose sur environ 135 m² habitables comme suit :
* entrée sur cuisine (23,6 m²) ;
* d'une part salon-séjour (42,9 m², cheminée non tubée, escalier menant à l'étage) ;
* d'autre part seconde entrée et couloir ;
* WC ;
* 2 chambres (14,7 m² et 17,7 m²) ;
* salle de bain (9,9 m²) ;
* salle d'eau (3 m², privative à une chambre) ;
* cave ;
* grand grenier isolé (avec écran sous-toiture déjà posé), offrant des possibilités supplémentaires d'aménagements, après travaux d'usage.
La maison est actuellement :
- chauffée au gaz de ville ;
- équipée de menuiseries en PVC double vitrage + volets électriques / en bois avec survitrage dans le salon-séjour ;
- raccordée à un assainissement individuel (qui sera à raccorder au réseau d'assainissement collectif, en cours d'élaboration dans la commune, par l'acquéreur, le moment venu).
A l'extérieur, la maison dispose :
- d'un portail motorisé à rue (moteur de 2024) ;
- de deux garages (portes manuelles) ;
- d'une terrasse en pavés ;
- d'un jardin clos et arboré.
Le tout sur et avec 1.435 m² de terrain.
Taxe foncière (2025) : 809 €.
Informations relatives au diagnostic de performance énergétique : Consommations énergétiques (CE) Classe F indice 414 kWhEP/m²/an et émissions de gaz à effet de serre (GES) Classe F indice 83 kgéqCO2/m²/an. Logement à consommations énergétiques excessives.
Les informations sur les risques auxquels ce bien est exposé sont disponibles sur le site Géorisques : www.georisques.gouv.fr
Prix de vente : 170.000 € net vendeur, honoraire de négociation à la charge de l'acquéreur : 9.350 € (5,5 % TTC du prix de vente), provision sur frais d'acte de vente : 14.400 €.
Secteur MARQUION, CAMBRAI, DOUAI, ARRAS, SAUCHY-CAUCHY, BOURLON, SAINS-LES-MARQUION, BARALLE, BUISSY, SAUCHY-CAUCHY, SAUCHY-LESTREE, SAUDEMONT, RECOURT, QUEANT, OISY-LE-VERGER, PALLUEL, CAGNICOURT, HENDECOURT-LES-CAGNICOURT, RIENCOURT-LES-CAGNICOURT, CROISILLES, AUBIGNY-AU-BAC, AUBENCHEUL-AU-BAC, EPINOY, BUGNICOURT, CANTIN, VITRY-EN-ARTOIS, BIACHE-SAINT-VAAST, GOUY-SOUS-BELLONNE, ARLEUX, TORTEQUESNE, ETAING, HAMEL, DURY, VIS-EN-ARTOIS, SAUDEMONT, RUMAUCOURT, ECOURT-SAINT-QUENTIN, LECLUSE, ETERPIGNY, REMY, HAMBLAIN-LES-PRES, BOIRY-NOTRE-DAME, PELVES, BREBIERES, FERIN, GOEULZIN, COURCHELETTES, LAMBRES-LES-DOUAI,..... E-VALLEY, OSARTIS, E-VALLEY, Canal Seine-Nord, proximité autoroutes A 1 / A 23 / A 2, ...
Visites : Sur rendez-vous.
Immobilier.notaires® : Evaluer, acheter & vendre avec les notaires partout en France. 12 000 notaires, experts et négociateurs vous accompagnent dans vos projets immobiliers en toute confiance.
Ancien/Neuf | Ancien |
Surface habitable | 135 m² |
Surface terrain | 1435 m² |
Nombre de pièces | 4 |
Nombre de chambres | 2 |
Stationnement | Oui |
Cave | Oui |
Référence | 62017-3197 |
Date de mise à jour | 20/10/2025 |
*HN : Honoraire de négociation, hors frais de rédaction d'acte.
Pour les ventes, les prix sont affichés hors droits d'enregistrement et de publicité foncière.
**Honoraires de négociation TTC.
Pour les ventes, les prix sont affichés hors frais de rédaction d'acte, hors droits d'enregistrement et de publicité foncière. Pour les locations, les honoraires comprennent les frais de visite, de constitution de dossier et de rédaction de bail (Article 5 de la loi n°89-462 du 6 juillet 1989 modifié par la loi n°2017-86 du 27 janvier 2017 - art. 124)
Contacter l'office
Votre contact
Téléphone : 0321730322
Contacter par email
Diagnostics de performance énergétique
Classe énergétique :
414 kWh/m2.an
83 kg CO2/m2.an

Logement à consommation énergétique excessive
Emission de gaz à effet de serre :
83 kg Co2/m2.an

Diagnostic effectué le : 15/10/2025
Toutes les annonces des notaires de France
